Eine ernste und ungewöhnliche Veranstaltung

Eine Veranstaltung der Widersprüche: Ein Thema des Abends war die Bücherverbrennung, aber fast alle der zahlreichen Besucher singen und klatschen mit als die Band „Griechischer Wein“ spielt... Das bedrückende und zugleich traurige Thema war ein Teil der Lesung von Herbert Meyer und Gerd Wächter. Besucht man eine Lesung, die sich mit der Bücherverbrennung beschäftigt, dann geht man oft mit einem Kloß im Hals nach Hause. Eine gedrückte Stimmung herrschte bei der Lesung in der Singbergschule aber nicht. Die beiden verstanden es ernste Themen gekonnt zu verpacken. Der von ihnen aufgebaute Spannungsbogen entließ die Zuhörer mit einem Lächeln auf den Lippen.
08.10.19 / Gemeinde Wölfersheim

Wie geht‘s weiter mit der Mehrzweckhalle?

Bald wird die Gaststätte in der Mehrzweckhalle in Berstadt erneut geschlossen sein. „Der Vertrag lief eigentlich noch bis Juni 2015, aber die Pächterin hat den Vertrag gekündigt und um eine vorzeitige Vertragsauflösung gebeten.
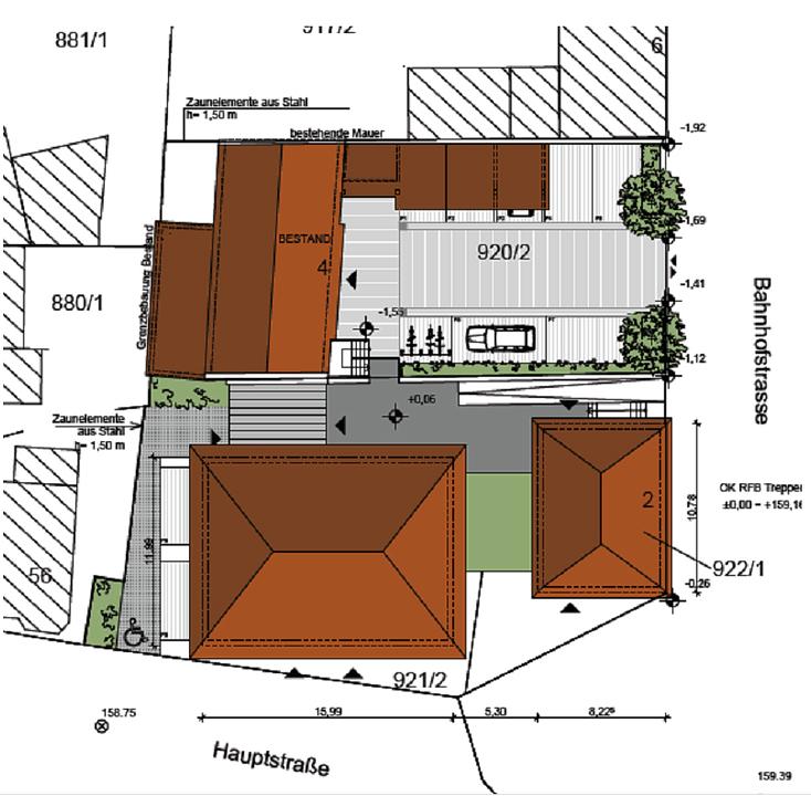
08.10.19 / Gemeinde Wölfersheim

Villa Kunterbunt soll umziehen

Der Wölfersheimer Kindergarten in der Wingertstraße ist energetisch nicht mehr zeitgemäß. Eine umfangreiche Sanierung sollte Abhilfe schaffen. Raumangebot und das Gebäude selbst sollten dadurch optimiert werden. Bei der Planung stieß man jedoch auf schwer überwindbare Hürden. Als sinnvollste Lösung schlägt der Gemeindevorstand nun einen Neubau vor.
08.10.19 / Gemeinde Wölfersheim

Schüler für das Lesen begeistern

Eine besondere Schulstunde erlebten die Kinder der Jim-Knopf-Schule am vergangenen Freitag. Gespannt konnten sie den sieben Vorlesern lauschen. Neben den Lehrerinnen und Lehrern lasen auch Bürgermeister Rouven Kötter und Kulturbeauftragter Sebastian Göbel. Beide sind Mitglied im Vorstand des Fördervereins Wölfersheimer Schulen und nahmen die Einladung der Schule gerne an. Auch die beiden ehemaligen Lehrer Herbert Meyer und Gerhard Wächter begeisterten die Schüler für Literatur. Lara Thomas, Gundi Kellinger, Susanne Wissel und Bärbel Armenat von der Schülerbücherei bzw. Lese-AG beteiligten sich ebenfalls.
08.10.19 / Gemeinde Wölfersheim

Übung für den Ernstfall

Der Boden rund um den verbeulten Kleinwagen liegt voller Scherben. Mitten auf der Kreuzung steht das Fahrzeug vor einem mit Gas beladenen LKW. Die Rettungkräfte von Feuerwehr und DRK versuchen eine Person aus dem Fahrzeug zu befreien. Anwohner kommen erschrocken auf die Straße. Doch einer der Anwohner hat eine Pfanne auf dem Herd vergessen, was zu einem Wohnungsbrand führt. Der Brand entwickelt sich schnell und im Haus sind mehrere Personen eingeschlossen. Zum Glück handelt es sich bei diesem Schreckensszenario nur um eine Übung, mit der die Einsatzkräfte der Freiwilligen Feuerwehren aus Wölfersheim für den Ernstfall probten.
08.10.19 / Gemeinde Wölfersheim

Geschwungene Wege und mehr Grün

Die Bestattungskultur befindet sich in einem Wandel. Der Trend geht klar zur Urnenbestattung. Außerdem gibt es insgesamt weniger Bestattungen auf den Friedhöfen. Es ist somit möglich, Flächen großzügiger zu gestalten. Der Friedhof in Wohnbach wurde vorletztes Jahr umfangreich neu gestaltet, und auch in Melbach sind erste Neuerungen zu sehen. Außerdem wird eifrig am Wohnbacher Baumfriedhof und dem Södeler Waldfriedhof gearbeitet. Das Ziel all dieser Maßnahmen: Dem Wunsch der Hinterbliebenen nach würdevoller Trauer an einem ansprechenden Ort nachzukommen.
08.10.19 / Gemeinde Wölfersheim

Wetterauhalle: Dach ist dicht!

Das Tropfen und Plätschern hat ein Ende. In der Zwischendecke der Wetterauhalle ist es nun wieder trocken, denn das neue Dach wurde fast fertiggestellt. Nur noch wenige Handgriffe sind notwendig. Durch die zügige Umsetzung konnten dauerhafte Schäden am Gebäude verhindert werden. Die etwa 30 Jahre alte Folie hatte unzählige Löcher und es bildeten sich große Luftblasen. An mehreren Stellen sammelte sich Wasser und floss durch die Löcher in die Zwischendecke. Früher wurde versucht die Löcher versiegeln zu lassen, doch die Arbeiten hatten leider wenig Erfolg: Die Löcher rissen immer wieder auf. Die notwendige umfangreiche Reparatur wurde durch den Gemeindevorstand schnellstmöglich abgewickelt. Dies war jedoch nicht so einfach.
08.10.19 / Gemeinde Wölfersheim

Waldfriedhof: Arbeiten haben begonnen

Im Södeler Wald ist es derzeit lauter als normal. Die Vorbereitungen für den Waldfriedhof laufen bereits seit geraumer Zeit. Nun konnte mit den Arbeiten vor Ort begonnen werden.
08.10.19 / Gemeinde Wölfersheim

Haushalt erneut ausgeglichen

Noch nie wurde ein Haushalt in der Gemeinde Wölfersheim so umfangreich, frühzeitig und transparent beraten und diskutiert. Bereits vor der Sommerpause hat Wölfersheims Bürgermeister Rouven Kötter sein Stabilitätsprogramm vorgestellt. Ausschusssitzungen, Gemeindevertretersitzungen und eine Bürgerversammlung später präsentiert er das Ergebnis: Auch für die Jahre 2015 und 2016 legt Kötter erneut einen ausgeglichenen Haushalt vor. Die Anstrengungen hierfür waren jedoch enorm. Kötter erläuterte das Zahlenwerk in der vergangenen Sitzung der Gemeindevertretung.
08.10.19 / Gemeinde Wölfersheim

In Wohnbach spielen alle Generationen

Schaukel, Rutsche und Klettergerüst findet man auf allen Spielplätzen. Der neue Mehrgenerationenspielplatz in Wohnbach bietet jedoch einiges mehr.
08.10.19 / Gemeinde Wölfersheim

Roter Asphalt soll für Sicherheit sorgen

Blechschäden und Stürze sind bei Schnee und Eis nichts ungewöhnliches. Durch die Verwendung von rotem Asphalt soll man in Wölfersheim künftig sicherer ans Ziel kommen.
08.10.19 / Gemeinde Wölfersheim

L'Isle sur le Doubs zeigt stolz Partnerschaft

s ist kaum ein paar Wochen her, da wurde der Partnerschaftsvertrag zwischen Wölfersheim und L‘Isle sur le Doubs unterschrieben.
08.10.19 / Gemeinde Wölfersheim

Gemeindeapp beliebtestes Projekt in Hessen!

Wölfersheims Bürger haben es geschafft. Aus mehr als 1.000 eingereichten Projekten hat es die Gemeindeapp unter die 100 Preisträger aus ganz Deutschland und unter die 10 beliebtesten Innovationsprojekte geschafft. Das Wölfersheimer Projekt ist das einzige Projekt aus Hessen. Nun liegt es an den Bürgern, die Gemeinde zum Bundessieger zu wählen. Die Abstimmung ist ab sofort unter www.welt.de/land-der-ideen möglich.
08.10.19 / Gemeinde Wölfersheim

Partnerschaftsverein fährt nach L‘Isle sur le Doubs

Es ist erst wenige Wochen her, da besuchte eine große Delegation aus L‘Isle sur le Doubs Wölfersheim. Im Rahmen des Besuches wurde der Partnerschaftsvertrag unterschrieben. Nun plant der Partnerschaftsverein einen Gegenbesuch im Dezember, für den sich alle interessierten Bürger anmelden können.
08.10.19 / Gemeinde Wölfersheim

Schon jetzt vormerken: Lesung mit Herbert Meyer und Gerd Wächter

Am 21.11.2014 findet in der Singbergschule eine Lesung im Rahmen des lokalen Aktionsplans BUNTerLEBEN statt.
08.10.19 / Gemeinde Wölfersheim

Erstes Scheunenfrühstück in der Marktscheune

Der Markt der Regionen macht derzeit Winterpause, doch auch während der kühleren Monate ist in der Marktscheune einiges los.
08.10.19 / Gemeinde Wölfersheim

Wohnbacher Rathaus wurde durchgesägt

Die Wohnbacher Senioren können einiges über das Alte Rathaus berichten. Kürzlich nutzten einige interessierte Bürger und Vertreter des Arbeitskreises Dorferneuerung die Möglichkeit, sich mit Bürgermeister Rouven Kötter, dem Ersten Beigeordneten Manfred Sauer und Bauabteilungsleiter Thomas Größer ein Bild von den Bauarbeiten zu machen.
08.10.19 / Gemeinde Wölfersheim

Grüne Daumen gesucht

Insgesamt gibt es in Wölfersheim wohl hunderte Grünflächen, die vom Bauhof der Gemeinde gepflegt werden. Dazu zählen neben den Sport- und Spielplätzen, dem See und anderen größeren Grünanlagen auch viele kleine Flächen wie z.B. Verkehrsinseln. Für den Bauhof ist das eine Herausforderung. Für aufwändige Pflege bleibt hierbei oft keine Zeit. Aus diesem Grund sucht die Gemeinde nun Paten für Grünanlagen.
08.10.19 / Gemeinde Wölfersheim

Teure Überraschung auf der Wetterauhalle

Schicht aus Kies, Holzgestell und Planabweichungen sorgen für Mehrkosten. Das Dach der Halle befindet sich in einem schlechten Zustand. In der Zwischendecke der Wetterauhalle tropft und plätschert es. Der Gemeindevorstand hat schnell gehandelt um Schäden am Gebäude zu vermeiden. Planungen und Auftragsvergabe konnten durch die Zustimmung der Gemeindevertretung zeitnah umgesetzt werden.
08.10.19 / Gemeinde Wölfersheim

Pro Menschenrechte - contra Vorurteile

Die Zahl der Asylsuchenden in Europa steigt. „Wir können doch nicht die ganze Welt aufnehmen“, hört man oftmals. Richtig ist: davon sind wir Lichtjahre entfernt. Nur ein Bruchteil der Flüchtlinge kommt nach Europa. Ei...
08.10.19 / Gemeinde Wölfersheim