Fachmarktzentrum für Berstadt

REWE, Getränkemarkt, dm-Drogerie, Schuh- und Textilgeschäft kommen
07.10.19 / Gemeinde Wölfersheim

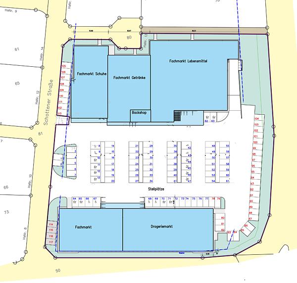
Im Baugebiet „Über den Holdergärten“ in Berstadt, direkt an der Kreuzung der B455 in Richtung Hungen und Nidda, hat ein privater Grundstückseigentümer einen Investor für ein Fachmarktzentrum geworben. Dieser Investor will dort einen REWE- und einen Getränkemarkt bauen. Da das entsprechende Grundstück in privater Hand ist und das Bauvorhaben den Vorgaben des Bebauungsplanes nicht widerspricht, hat die Gemeinde hierauf keinen Einfluss. REWE und Getränkemarkt werden also kommen, egal ob die Gemeinde das als wünschenswert ansieht oder nicht. Die Lage ist für die Märkte sehr interessant, da diese direkt an der Bundesstraße liegen würden und viele Pendler aus dem Kreis Gießen und der östlichen Wetterau täglich diese Kreuzung passieren – ein idealer Standort für einen Einkauf auf dem Heimweg oder dem Weg zur Arbeit. Die Notwendigkeit dieser beiden Ansiedlungen ist durchaus zweifelhaft, da die Gemeinde Wölfersheim gerade in Sachen Lebensmittel und Getränke eine ausreichende Versorgung hat. Eine entsprechende Anfrage beim Kreisbauamt hat jedoch bestätigt, dass die Gemeinde diese Ansiedlung nicht verhindern könnte, auch wenn das gewünscht wäre. Angrenzend an das private Grundstück verfügt die Gemeinde über ein weiteres Gewerbegrundstück, an dem der gleiche Investor Interesse gezeigt hat. Er würde die beiden Grundstücke gerne verschmelzen und neben REWE und Getränkemarkt drei Fachmärkte ansiedeln. Ein Textil- und ein Schuhgeschäft sowie eine dm-Drogerie. Diese drei Geschäfte sind für die Gemeinde Wölfersheim absolut interessant, da sie das wohnortnahe Einkaufsangebot deutlich verbessern würden. Es gibt in der gesamten Gemeinde kein Schuh- oder Textilgeschäft mehr. Nach der Schließung der Schleckermärkte ist auch der Drogeriebereich nur noch eingeschränkt abgedeckt. Insbesondere junge Familien haben immer wieder den Wunsch nach einer dm-Ansiedlung geäußert.

Bürgermeister Rouven Kötter erläuterte die rechtlichen Grundlagen und das Vorhaben des Investors im Rahmen der jüngsten Sitzung der Gemeindevertretung. Die Gemeindevertreter hatten anschließend keine leichte Entscheidung zu treffen. Sie standen vor der Wahl ob das kommunale Grundstück verkauft werden sollte oder nicht. Man hat sich diese Entscheidung nicht leicht gemacht und viele Argumente ausgetauscht. Insbesondere wurde befürchtet, dass die lokalen Märkte starke Konkurrenz bekommen. Die Kommunalpolitiker wollen keinen Lokalprotektionismus betreiben, schließlich belebt Konkurrenz das Geschäft. Aber bestehende Betriebe sollen in ihrer Existenz nicht durch Neuansiedlungen gefährdet werden. Auch über die Qualität der entstehenden Arbeitsplätze und das zu erwartende Angebot wurde intensiv diskutiert. Letztlich folgte die Mehrheit der Gemeindevertretung nach umfangreicher und konstruktiver Beratung dem vorliegenden Vorschlag, wenn auch größtenteils mit Bauchschmerzen: Da man den REWE- und den Getränkemarkt ohnehin nicht verhindern kann, dann sollen die Einkaufsmöglichkeiten in Wölfersheim wenigstens durch Geschäfte erweitert werden, die die Gemeinde als Ergänzung des bestehenden Angebots für ihre Bürgerinnen und Bürger gut gebrauchen kann. Daher wurde beschlossen, das kommunale Grundstück an den Investor zu veräußern und somit den Weg für ein Fachmarktzentrum in Berstadt freizumachen. Da der Bauantrag genehmigungsreif beim Wetteraukreis liegt, ist davon auszugehen, dass der neue Grundstückseigentümer schon in wenigen Wochen mit dem Bauarbeiten beginnen wird.